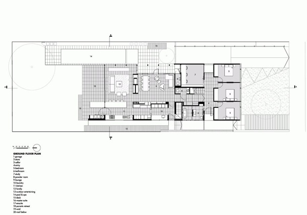
設計師以精簡的表達方式,完成了一件戲劇性的別墅建筑,該設計演繹出空間的靈活性,又不失去家庭生活的實用。 這個實用又美觀的住宅外觀平淡無奇,作為一個靈活的家庭生活空間,室內和外部環境的界線用模糊的手法處理,使每個生活空間都和戶外相結合。 該建筑的精巧細致,大膽的直線形式,和植物相映生輝。房子的一側入口實用舊鐵路枕木做成,在地面形成一個有趣的路徑。






上海鴻鈺別墅設計,精通上海別墅改建改造結構優化加固經驗,上海別墅設計,高端裝修,上海別墅裝修設計經驗,專業的豪宅別墅設計流程,設計裝修的靈魂賦予其精神及內涵,彰顯個性品位!
,轉載請以鏈接形式標明本文地址
本文地:http://www.hnrljc.cn/a/sevrs//2014/1030/195.html